Auftraggeber: Raiffeisenbank Gossau
– Wettbewerb im selektiven Verfahren, 1. Preis –
Architektur: Zimmer Schmidt Architekten
– Projektleitender Architekt in Anstellung bei Zimmer Schmidt Architekten –
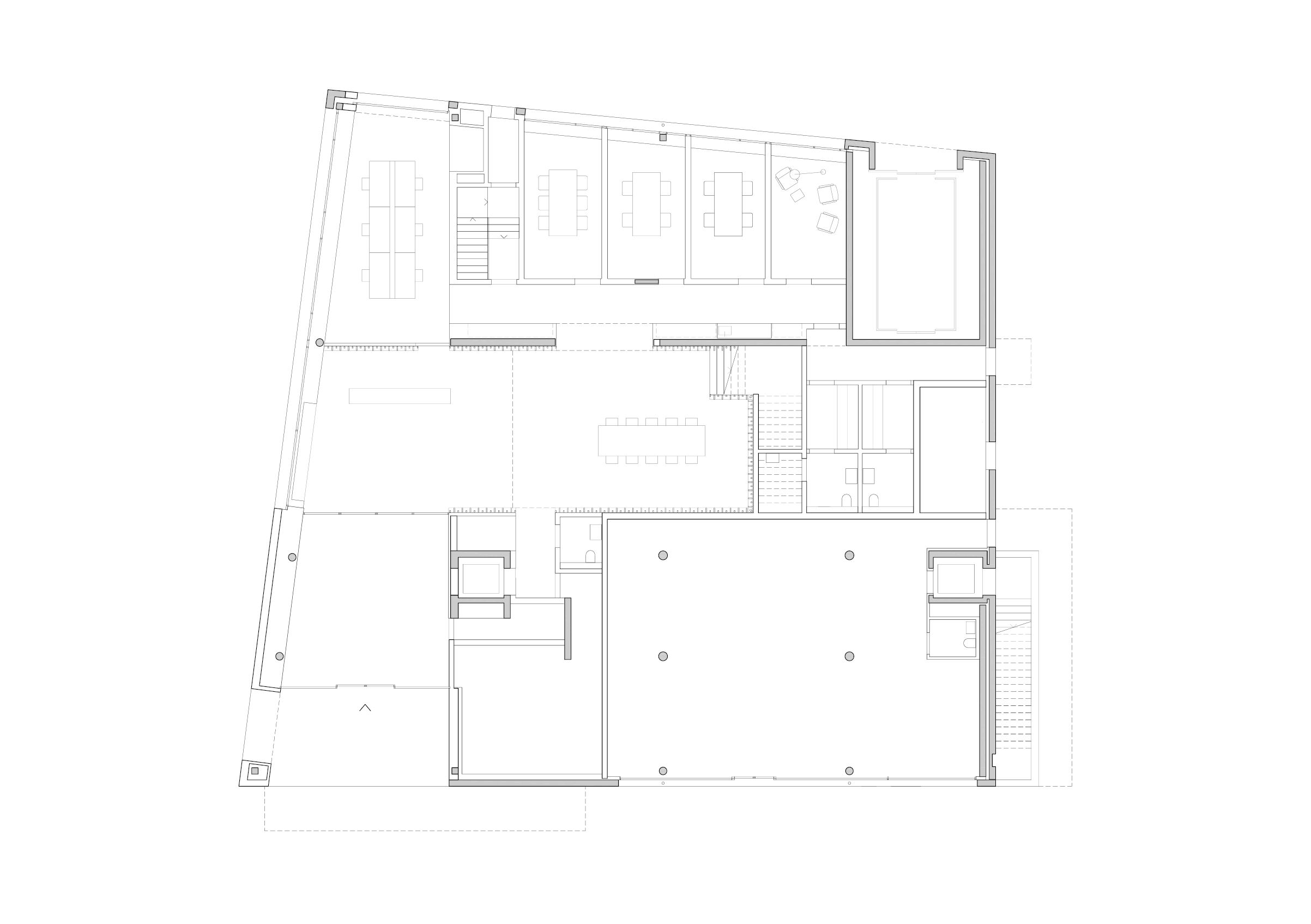
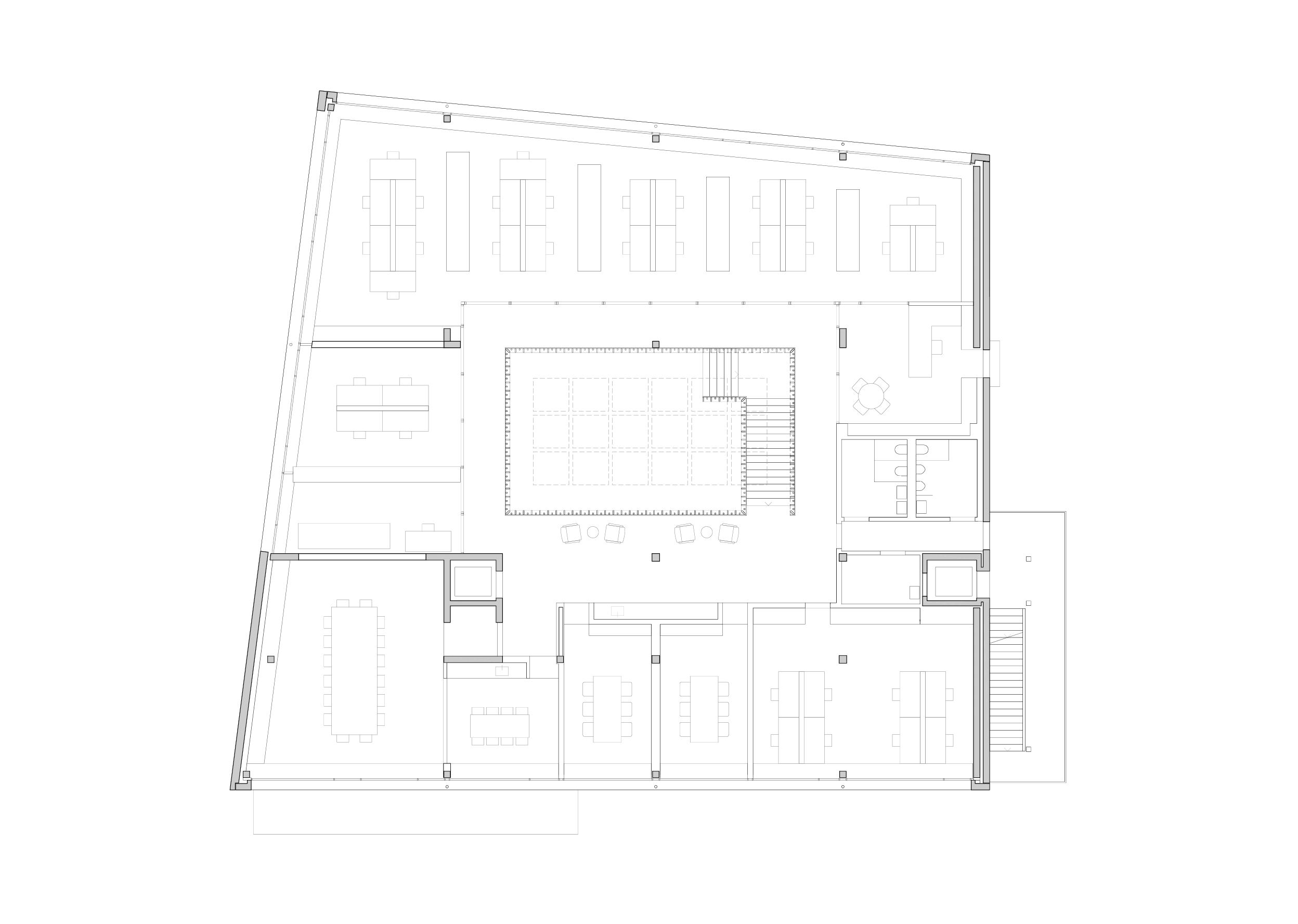
Programm: Geschäftsstelle, Backoffice
Ort: Gossau, SG
Datum: 2015-2017
Fotos: Mark Niedermann



















∧