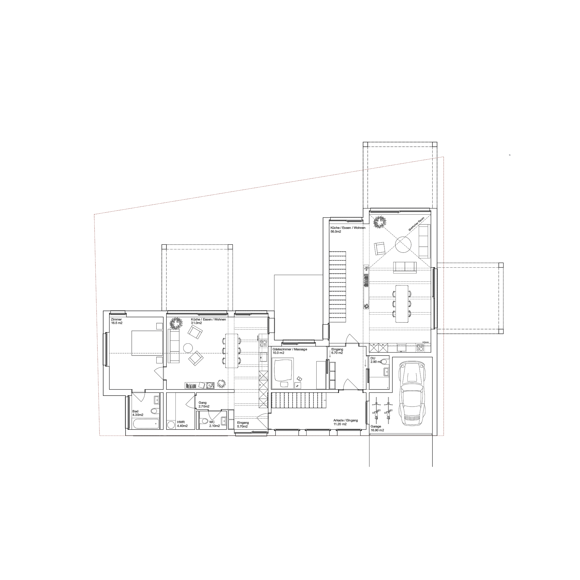
WOHNHAUS FÜR TOCHTER – MUTTER – GROSSMUTTER

 

 

Auftraggeber: Privat

– Direktauftrag –

Programm: Mehrgenerationenhaus

Bausumme: 700’000 Euro

Grösse: 375 m2

Ort: Canneto sull’Oglio, Italien

Datum: 2015-2017

 

 

 

 

 

 

 

 

 

 

 

 

nach oben